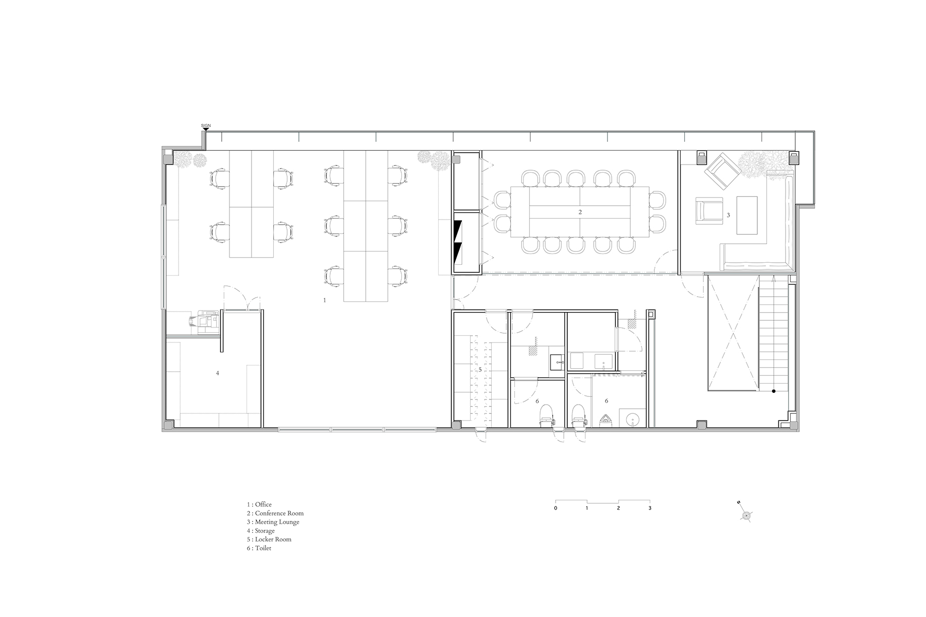
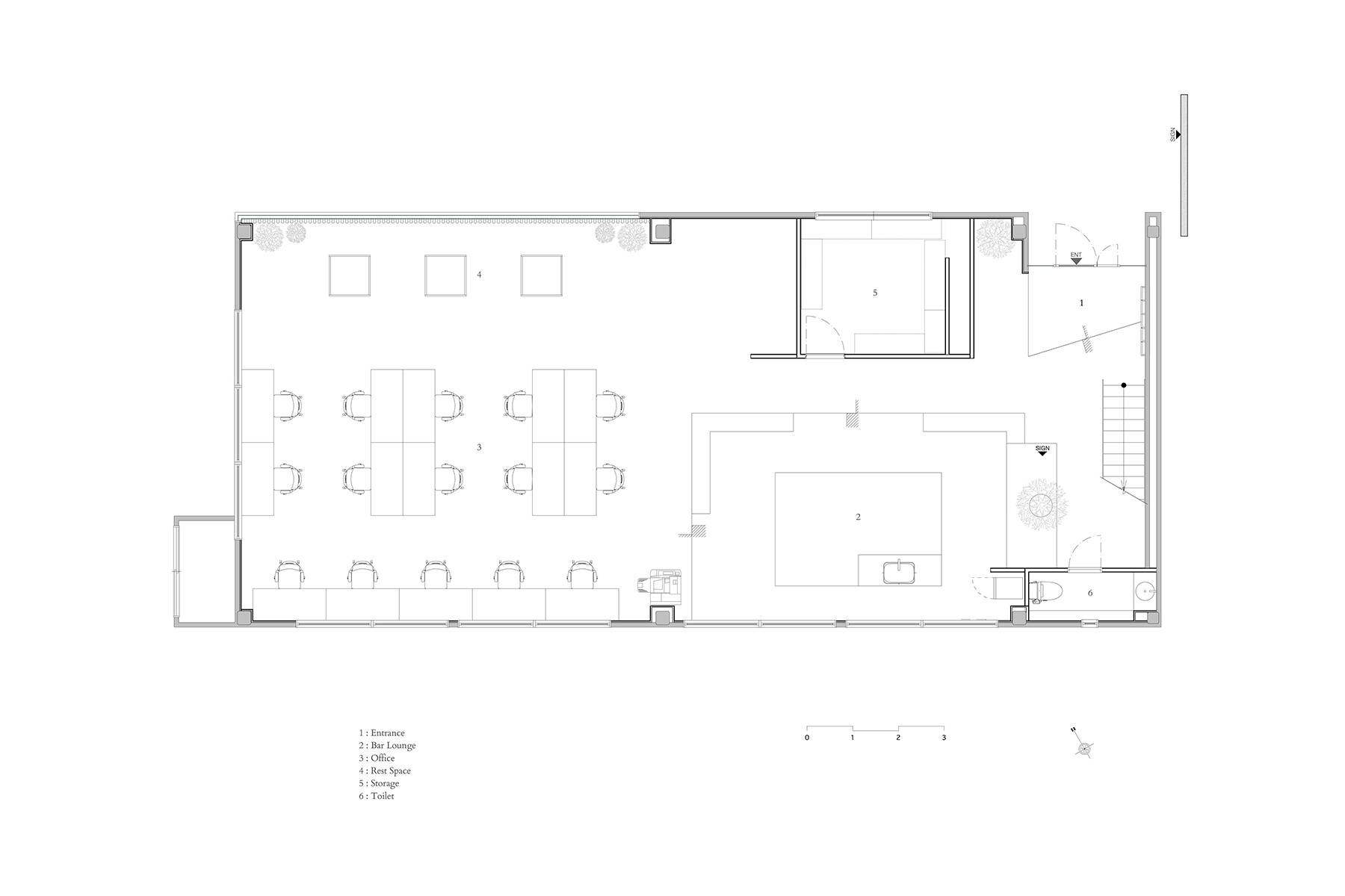
AXIS office

精度と信頼が息づく空間
コンクリート調査や土木に関わる測量・設計業務を行う企業のオフィス。
精度と信頼が求められる仕事の本質を、
**「精度」「信頼性」「接地感」**という三つのキーワードを軸に、空間として丁寧に翻訳した。
精度(Precision)
無駄を削ぎ落としたミニマルな空間構成は、数値や判断の正確さを象徴する。
構造体としてのコンクリートや金属の堅牢さを白で包み込み、
その中に抑制された色調を重ねることで、思考の輪郭を明快に浮かび上がらせている。
信頼性(Reliability)
質朴で揺るぎないマテリアルの選択と、落ち着いたトーン。
長年にわたり培われてきた技術力と誠実な姿勢を、主張しすぎることなく、静かに伝える。
接地感(Groundedness)
空間の中核には、機能と象徴のあいだに位置する柔らかな塊として、
大きなテーブルとベンチを据え、チェアもその一部として内包した。
自然塗料で着色したパーティクルボードの層や、コンクリートを想起させる重なりと質感が、
その塊に確かな接地感を与えている。
什器は「オフィスらしさ」を強調する道具ではなく、
建築の一部として、あるいは地層の起伏の一部として立ち現れる存在を目指した。
什器と建築、道具と風景の境界をにじませることで、
測量や調査という行為がもつ、地を読み取り、未来へとつなぐ姿勢を、空間全体で表現している。
“A Space Where Precision and Trust Reside”
An office for a company engaged in concrete investigation, surveying, and civil engineering design.
The essence of work that demands precision and reliability is translated into space through three key concepts:
Precision, Reliability, and Groundedness.
Precision
A stripped-back, minimal composition reflects the accuracy of numbers and judgment.
The robustness of concrete and metal is wrapped in white, with restrained tones layered to clarify thought and decision-making.
Reliability
Honest, enduring materials and a calm palette
quietly convey years of technical expertise and trust, without overt assertion.
Groundedness
At the heart of the space,
a large table and benches form a soft mass between function and symbol, with seating integrated within.
Layers of naturally pigmented particle board and concrete-like textures lend the mass a tangible sense of groundedness.
Furniture emerges as part of the architecture— or as a subtle rise within a geological landscape.
By blurring the boundaries between furniture and architecture,
tools and scenery, the space expresses the attitude inherent in surveying:
reading the ground and carrying that understanding into the future.
DATA
- Type
- Office / Showroom
- Category
- Interior Design
- Date
- 2025.11
- Location
- Hamamatsu Shi Naka Ku, Shizuoka
- Size
- 318.3㎡
CREDIT
- Client
- Axis Co., Ltd.
- Interior design
- moss.
- Product design
- moss.
- Project management
- moss.
- Construction
- Showa Kensan | Massive
- Partners
- LOSKA
- Photo
- Koji Fujii(TOREAL)


